津志田2地割【駐車並列3台・3LDK】
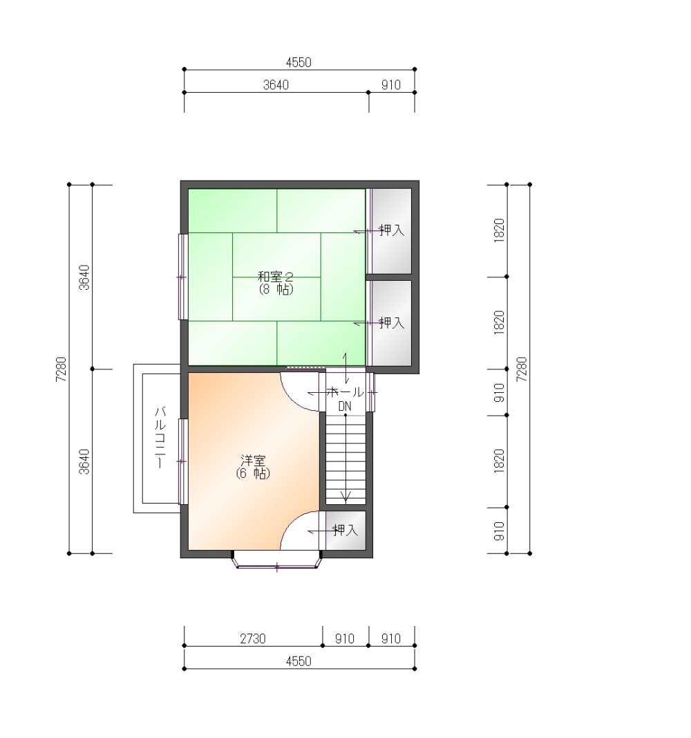
間取り・図面



仕様、内観
-

外観 淡い色合いの外観がやさしい印象の住まい。シンプルなデザインで街並みに馴染み、前面には駐車スペースも確保されています。
-

駐車スペース アスファルト敷きの駐車場は、並列3台駐車可能です
-

リビング 木目の温かみがあるLDK。キッチンと一体になった使いやすい間取りで、家具の配置もしやすいシンプルな空間です。
-

リビング 大きな掃き出し窓から光が入る明るい洋室。シンプルな間取りで家具の配置がしやすく、ゆったりと過ごせる開放感のある空間です。
-

キッチン 木目調の扉とステンレス天板が調和したキッチン。窓があり明るく、コンパクトながら調理や片付けがしやすい使い勝手の良い空間です。
-

浴室 明るく清潔感のある浴室。浴槽とシャワーがまとまった使いやすい造りで、窓があるため換気しやすく、毎日の入浴が快適に楽しめます。
-

1階和室 自然光が入る明るい和室。畳の落ち着いた雰囲気が心地よく、客間やくつろぎスペースとしても使いやすいシンプルな空間です。
-

2階洋室 大きな窓から光が入る明るい洋室。シンプルな間取りで家具の配置がしやすく、寝室やワークスペースなど多用途に使える空間です。
-

2階和室 自然光が入る明るい和室。畳の落ち着いた雰囲気が心地よく、客間やくつろぎスペースとしても使いやすいシンプルな空間です。
-

トイレ 温水洗浄便座付きで快適に使えるトイレ。窓があり明るく換気しやすい空間で、淡い色合いの内装と床の柄がやさしい雰囲気を演出します。
その他概要
-
所在地
盛岡市津志田2地割1-5
-
建築確認番号
第H07認建盛岡001512号
-
構造
木造2階建
-
用途地域
※市街化調整区域
既存宅地確認済により再建築可(サイズ制限アリ) -
建ぺい率
70%
-
容積率
200%
-
土地権利
所有権
-
電気
あり
-
水道
公共水道
-
排水
公共下水
-
駐車台数
並列3台
-
備考
※現状販売物件
白蟻防除施工、ハウスクリーニングを行ってお引渡し致します
※リフォーム工事のお見積りも可能です!
Googleマップ
【現地内覧会開催中】ご来場特典として最大5000円のQUOカードをプレゼント!※事前のご予約が必要です(ご予約先TEL:019-656-0017)
・盛岡南エリアで生活利便性の高い立地
・小学校・公園が近く、子育てしやすい住環境
・国道4号へのアクセスが良く、通勤・お出かけに便利
~QUOカード進呈条件~
・事前にご予約された方が対象です
・ご内覧の際に2000円進呈いたします
・住宅ローンの事前審査に進まれた際に3000円進呈いたします
この住宅についての
お問い合わせ
この住宅についてのお問い合わせは、下記フォームからお願いいたします。
後日担当者からご連絡させていただきます。
また、お急ぎの場合はメールの対応が遅れてしまう可能性もあるため、
お手数ではございますが、お電話でのご予約をお願い申し上げます。