■北上市藤沢22地割【西洋風3階建・ウッドデッキ・カーポート2台分】
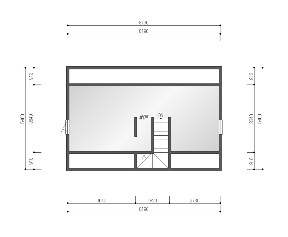
間取り・図面




仕様、内観
-

外観 屋根付きカーポートで積雪時も安心。前面道路付きで車の出入りもスムーズ。冬季も快適に使える外構です。
-

カーポート 屋根付きカーポートで積雪時も安心。前面道路付きで車の出入りもスムーズな外構です。
-

物置 積雪時も安心な屋根付き物置。除雪道具や季節用品の収納に便利な、冬の暮らしを支える外構です。
-

リビング 南向きの窓から光が差し込む明るいLDK。階段付きで家族の動線も見渡しやすく、快適性も◎。
-

リビング 複数の窓から光が差し込む明るいLDK。階段・廊下・キッチンが一体となった開放的な空間です。
-

キッチン シンク・コンロ・作業台がU字型に配置された機能的なキッチン。上下収納が豊富で、奥にはパントリーもあり、家事動線がスムーズです。
-

キッチン ステンレスシンクと3口コンロが並ぶコンパクトキッチン。上下収納も充実し、自然光が差し込む明るく清潔感のある空間です。
-

洋室 2面採光で自然光が差し込む洋室。窓から雪景色も望める、季節感ある落ち着いた空間です。
-

洋室 白壁と木目床が調和した洋室。照明・扉・設備類が整い、寝室や書斎にも活用しやすい空間です。
-

洗面所 鏡・照明・収納棚付きの洗面台。洗濯機置場もあり、浴室とつながる家事動線がスムーズな空間です。
-

浴室 深型浴槽と手すり付きで安心な浴室。鏡・照明・操作パネル・換気設備も整い、機能的な空間です。
-

納戸 天窓と壁窓から光が差し込む明るいロフト。眺望もあり、趣味部屋や書斎にもおすすめです。
-

玄関 木製扉とタイル床が調和した清潔感ある玄関。上下収納付きで靴の整理も快適です。
-

トイレ 温水洗浄便座・手洗い付きタンクで快適なトイレ空間。木目床と白壁が調和し、清潔感も◎。
その他概要
-
所在地
北上市藤沢22地割15-24
-
建築確認番号
第17-1389号
-
構造
木造3階建
-
用途地域
第1種住居専用地域
-
建ぺい率
60%
-
容積率
200%
-
土地権利
所有権
-
電気
あり
-
水道
上水道
-
排水
公共下水
-
駐車台数
2台
-
備考
現状販売
Googleマップ
【現地内覧会開催中】ご来場特典として最大5000円のQUOカードをプレゼント!※事前のご予約が必要です(ご予約先TEL:019-656-0017)
・内装リフォーム済み!
・広々としたお庭でガーデニングなど!
~QUOカード進呈条件~
・事前にご予約された方が対象です
・ご内覧の際に2000円進呈いたします
・住宅ローンの事前審査に進まれた際に3000円進呈いたします
この住宅についての
お問い合わせ
この住宅についてのお問い合わせは、下記フォームからお願いいたします。
後日担当者からご連絡させていただきます。
また、お急ぎの場合はメールの対応が遅れてしまう可能性もあるため、
お手数ではございますが、お電話でのご予約をお願い申し上げます。