花巻市松園町【カーポート付き・洋風5LDKフルリフォーム住宅】
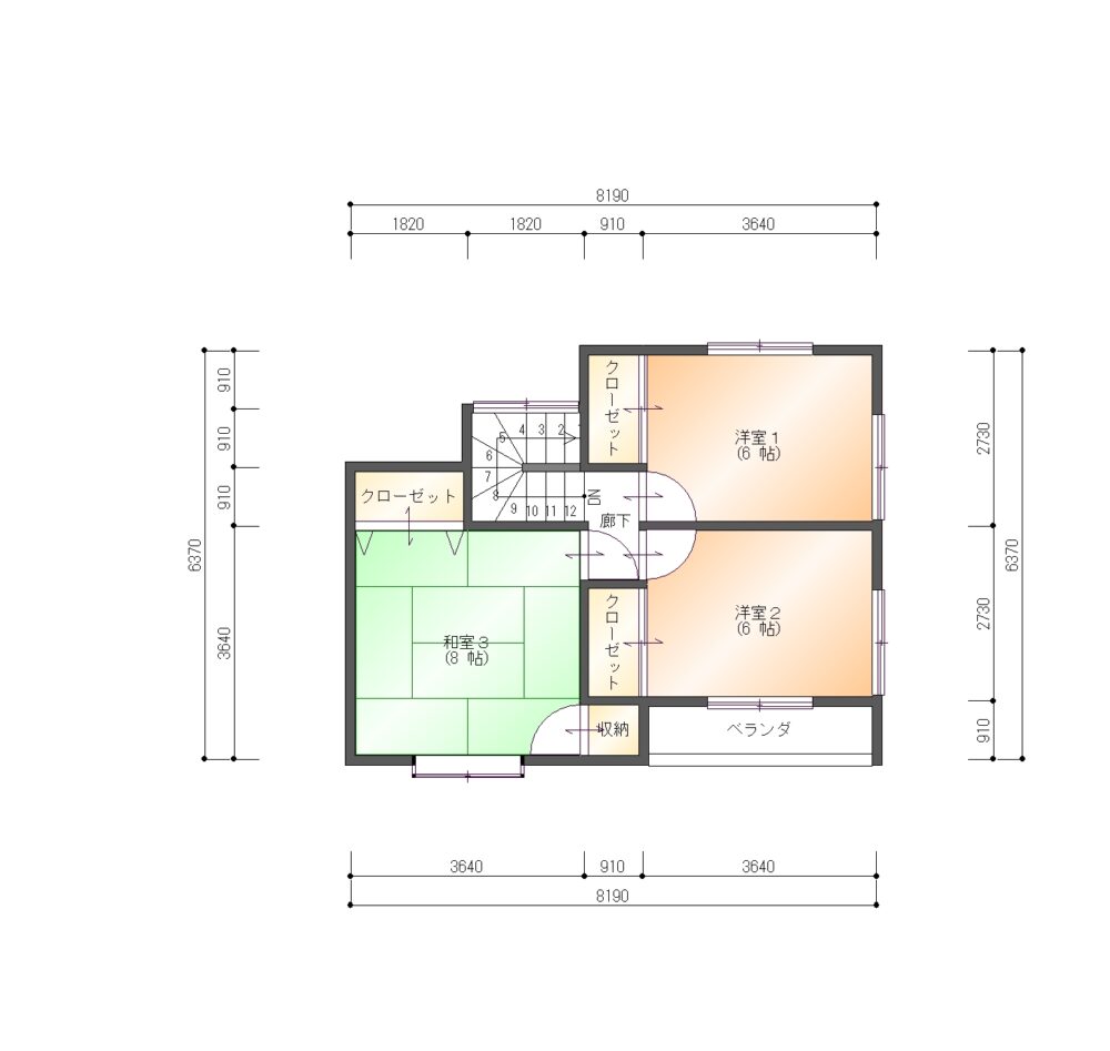
間取り・図面



仕様、内観
-

外観 白を基調とした外観に黒のアクセントが映える2階建て住宅。広々としたカーポート付きで、複数台の駐車も可能です。
-

カーポート 大型カーポート付きで、複数台の駐車も可能。雨の日でも快適に乗り降りでき、外観とも調和したスタイリッシュな設計です。
-

モダンな外観が魅力の2階建て住宅。玄関ポーチと広々カーポート付きで、雨の日も快適に過ごせる設計です。
-

リビング 自然光がたっぷり入るLDKは、ダークウッドのキッチンが空間を引き締める洗練されたデザイン。掃き出し窓+エアコン付きで快適です。
-

キッチン 清潔感と高級感を兼ね備えたキッチン。3口コンロ・レンジフード・窓付きで、調理も快適にこなせる空間です。
-

リビング 大きな窓から自然光が差し込む明るいLDK。天井の化粧梁が空間に温かみを添え、開放感とデザイン性を兼ね備えています。
-

洗面所 白を基調とした洗面脱衣所は、洗濯機置き場や収納力のある洗面台を備えた機能的な設計。窓から自然光が入り、明るく快適です。
-

浴室 木目調の壁が落ち着いた雰囲気を演出する浴室。縦長ミラーや収納棚付きで使いやすく、窓付きで換気も良好です。
-

和室1 障子で仕切られた続き間の和室は、開放すれば広々とした空間に。畳と木目が調和し、落ち着きある癒しの空間です。
-

和室2 障子から差し込む柔らかな光が心地よい和室。畳敷きの落ち着いた空間は、客間やくつろぎスペースとしても活用できます。
-

洋室 2面採光の明るい洋室は、白壁と木目床が調和した清潔感ある空間。窓枠のダークカラーがアクセントになっています。
-

洋室 収納付きの洋室は、白壁と木目床が調和した清潔感ある空間。ダークカラーの扉がアクセントとなり、落ち着いた印象です。
-

洋室 2面採光の明るい洋室は、白壁と木目床が調和した清潔感ある空間。バルコニー付きで通風・採光も良好です。
-

玄関 ルーバー扉の下駄箱や大きな鏡付きで使いやすい玄関。窓から自然光が入り、明るく清潔感のある空間です。
-

トイレ コンパクトながら機能性の高いトイレ。温水洗浄便座や壁付け操作パネル、窓付きで快適性と清潔感を兼ね備えています。
その他概要
-
所在地
岩手県花巻市松園町450-19
-
建築確認番号
第13-124号
-
構造
木造2階建
-
用途地域
非線引/指定なし
-
建ぺい率
70%
-
容積率
200%
-
土地権利
所有権
-
電気
あり
-
水道
上水道
-
排水
公共下水
-
駐車台数
カーポート並列2台
カースペース1台 -
備考
リフォーム内容
■外構 2025年9月
駐車場グラベルフィックス敷設後に砕石入替
植栽伐採して防草シート敷設後に砕石入替
■外装 2025年9月
屋根・外壁塗装
カーポート屋根板交換と塗装
■内装 2025年9月
クロス張替え、照明交換、インターホン交換
ユニットバス交換、システムキッチン交換、洗面化粧台交換、トイレ交換
Googleマップ
■現地内覧会キャンペーン開催中!■
現地内覧会キャンペーンを開催中!
土・日・祝・平日(火・水)除く10:00~17:00
WEBでご予約の場合は「お問い合わせ内容」の□物件を実際に見たいにチェックをして
ご希望の日時をご記入の上お申込みください。
WEB予約後、担当者より日時の確認のご連絡を差し上げます。
予約確認のお電話をもって、予約完了とさせていただきます。
さいはん本舗 TEL:019-656-0017
この住宅についての
お問い合わせ
この住宅についてのお問い合わせは、下記フォームからお願いいたします。
後日担当者からご連絡させていただきます。
また、お急ぎの場合はメールの対応が遅れてしまう可能性もあるため、
お手数ではございますが、お電話でのご予約をお願い申し上げます。