矢沢町白沢第3地割【積水ハウス施工・3LDKドッグラン付き】
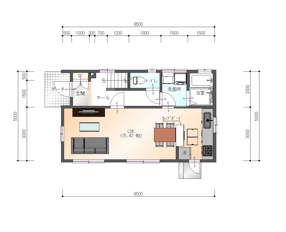
間取り・図面



仕様、内観
-

建物全景 積水ハウス施工のどっしりとした外観です
-

白を基調とした外観
-

【リフォーム済】砕石敷駐車場は3台駐車が可能です
-

【リフォーム済】砕石敷駐車場
-

アスファルト敷きの独立庭付き
-

【リフォーム済】人口芝を新設済みです
-

【リフォーム済】1階廊下 廊下の床張替えをしました!建物はハウスクリーニング済みです。
-

1階廊下~階段 床張替え済みです
-

【リフォーム済】リビング クロスの貼り替え、照明交換・床張替えを行いました
-

【リフォーム済】キッチン背面の壁を撤去してカウンターを新設しました。
-

【リフォーム済】キッチンカウンターに変更したことで、圧迫感がなくなりました
-

【リフォーム済】キッチンカウンター
-

【リフォーム済】リビング 寒冷地用エアコンを新設しています
-

【リフォーム済】インターホン リビングにカラーTVモニター付きインターホンを新設しました
-

【リフォーム済】キッチン 収納たっぷりの新しいシステムキッチンです
-

【リフォーム済】キッチン シンクも広々としたステンレス製シンクです
-

【リフォーム済】1階トイレ 温水洗浄暖房便座付きです 背面には収納が2か所あります
-

【リフォーム済】洗面脱衣場 洗面化粧台は新品交換済みです
-

【リフォーム済】お風呂 ユニットバスは新品交換済みです
-

階段 階段手すりがあるので上り下りも安心です
-

【リフォーム済】2階廊下 クロスの貼り替え、照明交換を行いました
-

【リフォーム済】洋室C 内窓交換をしています
-

洋室C 備え付けのクローゼットがあります
-

洋室C クローゼットは棚付きですぐに使用できます
-

洋室B 広さは6帖あり、クローゼット付きです
-

洋室B 収納スペースです
-

洋室A 広さはおおよそ6.5帖あり、こちらもクローゼット付きです
-

洋室A 収納スペースです
-

【リフォーム済】2階トイレ こちらも1階同様、温水洗浄暖房便座付きのトイレに新品交換しました
周辺施設情報
-
ローソン花矢巾ニュータウン店 徒歩4分
-
森山パストラルパーク 徒歩10分
-
矢巾町立矢巾中学校 徒歩11分
-

マックスバリュ矢巾店 徒歩21分
-
不動小学校 徒歩38分
その他概要
-
所在地
紫波郡矢巾町大字白沢第3地割138-20
-
構造
軽量鉄骨造
-
用途地域
1種中高
-
建ぺい率
60%
-
容積率
200%
-
土地権利
所有権
-
電気
あり
-
水道
上水道
-
排水
公共下水
-
駐車台数
駐車場3台分
-
備考
【リフォーム】
1階フローリング張り、水回り設備すべて交換・インターホン交換・照明交換
LDKと1階廊下の床張替工事・リビングにエアコン新設
クロス全貼替・砕石敷駐車場3台駐車可・鍵交換、人工芝敷設
キッチン背面の壁撤去、LDK間取り変更工事、エアコン移設
【積水ハウス施工物件】
■価格改定しました■
~2025年4月に100万円のお値下げを実施~
新価格2498万円(価格改定日2025年4月1日)
旧価格2598万円(旧価格公表日2024年11月16日)
Googleマップ
■現地内覧会キャンペーン開催中!■
現地内覧会キャンペーンを開催中!
土・日・祝・平日(火・水)除く10:00~17:00
WEBでご予約の場合は「お問い合わせ内容」の□物件を実際に見たいにチェックをして
ご希望の日時をご記入の上お申込みください。
WEB予約後、担当者より日時の確認のご連絡を差し上げます。
予約確認のお電話をもって、予約完了とさせていただきます。
さいはん本舗 TEL:019-656-0017

リフォーム後のVR画像がご覧いただけます
この住宅についての
お問い合わせ
この住宅についてのお問い合わせは、下記フォームからお願いいたします。
後日担当者からご連絡させていただきます。
また、お急ぎの場合はメールの対応が遅れてしまう可能性もあるため、
お手数ではございますが、お電話でのご予約をお願い申し上げます。